Mieszkanie na sprzedaż Sosnowiec, Sielec, Kukułek

4 pokoje
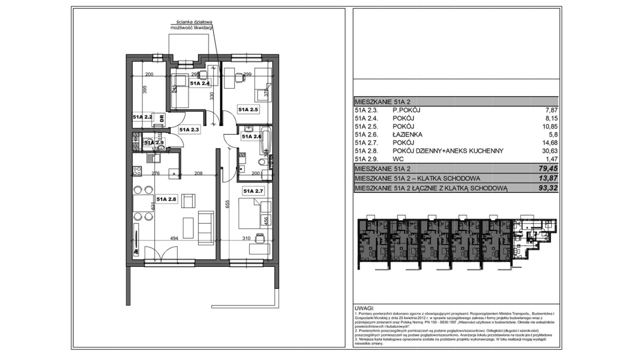
79.45 m²
7 955,95 zł/m2
1 piętro
NOWE-MS-10856
Oblicz ratę kredytu Powiadom o spadku ceny

632 100 zł

Mieszkanie na sprzedaż
Bez prowizji

Szczegóły oferty

Inwestycja Kukułek 51 / Sosnowiec
Symbol oferty NOWE-MS-10856
Powierzchnia 79,45 m²
Powierzchnia użytkowa [m2] 79,45 m²
Powierzchnia balkonów/tarasów 21,00 m²
Liczba pokoi 4
Rodzaj budynku nowe budownictwo
Standard
Piętro 1
Liczba pięter w budynku 1
Garaż miejsce parkingowe
Stan lokalu Do wykończenia
Okna PCV
Instalacje nowe
Balkon taras
Gaz jest
Dojazd asfalt
Ogrzewanie podłogowe
Tarasy taras duży
Klucze tak
Pomieszczenia

Opis nieruchomości

Zapraszam na Dzień Pokazowy kameralnej inwestycji mieszkaniowej w Sosnowcu, podczas którego będzie można obejrzeć gotowe mieszkania na żywo.


Sobota, 14 lutego 2026 r.
Godziny: 10:00–12:00
Sosnowiec, ul. Kukułek 51
+48 500 610 613


Nowe mieszkanie na sprzedaż – Sosnowiec, ul. Kukułek | 79 mkw, taras 21 mkw, ogrzewanie podłogowe

Szukasz nowego mieszkania na sprzedaż w Sosnowcu, idealnego dla rodziny lub pary planującej przyszłość? Zależy Ci na ciszy, kameralnym otoczeniu i jednocześnie szybkim dostępie do infrastruktury miejskiej? Ta oferta spełnia wszystkie te oczekiwania.

Na sprzedaż nowoczesne mieszkanie w Sosnowcu przy ul. Kukułek, położone na kameralnym, nowym osiedlu składającym się z zaledwie 2 niskich budynków i 16 mieszkań. To propozycja dla osób, które cenią spokój, prywatność oraz wysoki standard nowego budownictwa. Do każdego mieszkania przypisane jest miejsce postojowe.

Funkcjonalne mieszkanie 79 mkw z dużym tarasem

Oferowane mieszkanie znajduje się na piętrze i ma powierzchnię ponad 79 mkw. Przemyślany układ obejmuje:

✔️ 4 pokoje, w tym przestronny salon z aneksem kuchennym,
✔️ łazienkę z WC,
✔️ dodatkowe WC,
✔️ funkcjonalny przedpokój.

Z salonu prowadzi bezpośrednie wyjście na taras o powierzchni aż 21 mkw, który stanowi idealną przestrzeń do wypoczynku, spotkań rodzinnych i aranżacji zielonej strefy relaksu.

Nowe budownictwo i wysoki standard

Mieszkanie zostało zaprojektowane z myślą o komforcie codziennego życia. W standardzie znajdziesz m.in.:

✔️ ogrzewanie podłogowe w całym mieszkaniu,
✔️ duże, przesuwne okna tarasowe o szerokości 3 metrów, zapewniające doskonałe doświetlenie wnętrz,
✔️ żaluzje fasadowe od strony frontowej, zwiększające komfort i prywatność.

Idealna lokalizacja – Sosnowiec, ul. Kukułek

Lokalizacja łączy zalety spokojnej, kameralnej dzielnicy z wygodnym dostępem do sklepów, szkół, przedszkoli i komunikacji miejskiej. To doskonały wybór dla rodzin z dziećmi oraz osób, które chcą mieszkać komfortowo, bez rezygnacji z udogodnień miasta.

Lokalizacja nieruchomości

Kalkulatory

Kalkulator kredytowy

Wysokość raty

PLN
%

Podobne oferty

Bez prowizji

Mieszkanie na sprzedaż

Sosnowiec, Sielec

4 pokoje 85 m2 8 057,36 zł/m2
Bez prowizji
Bez prowizji

Mieszkanie na sprzedaż

Sosnowiec, Sielec

4 pokoje 85 m2 7 955,86 zł/m2
Bez prowizji
Bez prowizji

Mieszkanie na sprzedaż

Sosnowiec, Sielec

4 pokoje 85 m2 7 955,86 zł/m2
Bez prowizji
Bez prowizji

Mieszkanie na sprzedaż

Sosnowiec, Sielec

4 pokoje 85 m2 7 955,86 zł/m2
Bez prowizji

Proszę wprowadzić poprawne imię i nazwisko
Proszę wprowadzić poprawny numer telefonu
Proszę wprowadzić poprawny adres e-mail
Proszę zaznaczyć wymagane zgody
Rozwiąż równanie:
27 3
Niepoprawny wynik